Objekt-Beschreibung
                
                    Nutzfläche:   
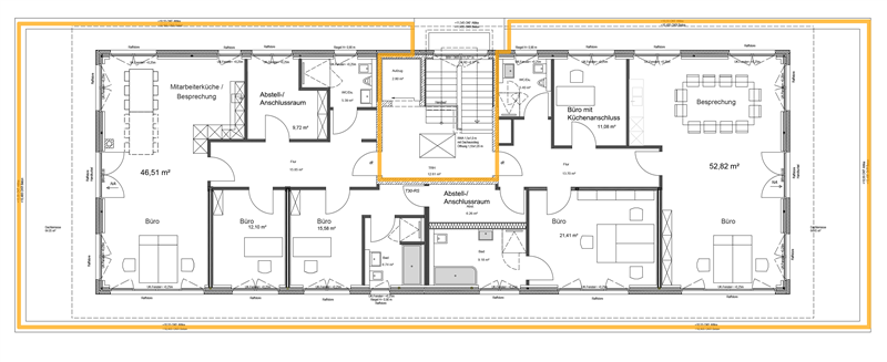
 Ca. 296 m² Gesamtnutzfläche im 3. Obergeschoss eines Geschäfts-/Bürogebäudes (9 Parteien). Barrierefreie Einheit mit Fahrstuhl im Treppenhaus. Die Dachterrasse hat eine Fläche von 128 m². 
 
 Aufteilung:   
 Flur, 2 großzügige und helle Büroflächen je mit Anschlüssen für eine Küche (Abtrennung/Aufteilung zu 3-4 Räumen möglich), 4 weitere Büroräume (einer davon ebenfalls mit Anschlüssen für eine Küche, 2 Räume davon mit anliegenden Bädern), 2 weitere Duschbäder mit Fenster auf den Fluren, 2 Anschluss-/Abstellräume. 
 
 2 PKW-Stellplätze in der Tiefgarage möglich, weitere Stellplätze auf Anfrage. 
 
                
                Ausstattung
                
                    Sep. abrechenbare Wärmepumpe. Alle Räume mit Fußbodenheizung und Netzwerkverkabelung. Große Fenster mit Raffstoren in allen Räumen. Wände und Decken glatt, weiß gestrichen. Deckenspots. Alle Räume mit Fliesenboden, weiße Innentüren. 
 
 Sonstiges:   
 Energiebedarf des Gebäudes: 44,55 kWh/(m²a). Die Mindestvertragslaufzeit beträgt 5 Jahre. Die Fläche ist teilbar.
 Übernahme:   
 Bezug nach Absprache möglich.
 
 Netto-Kaltmiete:   
 € 3.552,- monatlich zzgl. € 70,- je Stellplatz. 
 
 Nebenkosten:   
 Ca. € 700,- monatliche Nebenkostenvorauszahlung für Wasser, Abwasser, Niederschlagswasser, Straßenreinigung, Müllabfuhr, Grundsteuer und Versicherung. 
 
 Die Kosten für Strom sind mit den zuständigen Versorgungswerken abzurechnen.
 
 Kaution:   
 3 Netto-Monatsmieten.   
 
 Mietercourtage:   
 2,38 Netto-Monatsmieten inkl. 19 % MwSt.
 
 Anmerkung:   
 Alle Angaben erfolgen durch den Vermieter, ohne Gewähr.
 Irrtum und Zwischenvermietung bleiben vorbehalten.
                
                
                    Bezug nach Absprache möglich.
                
                Beschreibung der Lage
                
                    Gute und stark frequentierte Geschäftslage. Sehr gute Infrastruktur. Direkte Anbindung zu den BAB A2 und A30.  Verschiedene Restaurants, die Innenstadt von Bad Oeynhausen, der Siel-Park sowie der Werre Park sind in wenigen Gehminuten erreicht. 
 
                
                Maklerprovision
                
                    2,38 Netto-Monatsmieten inkl. 19 % MwSt.
                
                
                Energiepass
                
                    44,55 kWh/(m²a)